Перейти к контенту
Подбор и сравнение проектов домов от застройщиков Московской области
Подборщик домов
Калькулятор сметы
Калькулятор площади
Форум
Блог
Главная
›
Каталог проектов
›
Проект S-701-1K
Проект S-701-1K
Застройщик: Юникс-Строй
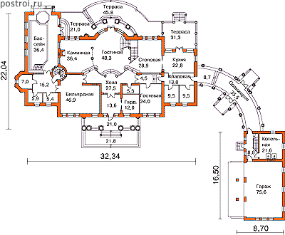
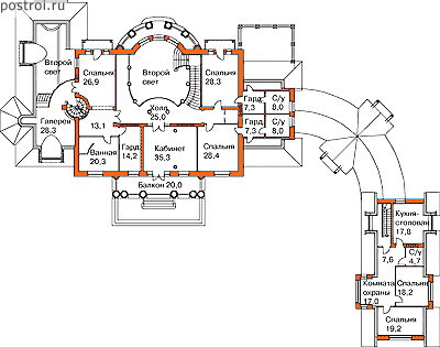
701.1 м²
1 / 3
🏠
701.1 м²
📐
2 этаж
🧱
Кирпич
Похожие проекты
Похожие по цене
Похожие по площади
Одноэтажный дом «Бергер» с плоской крышей
5 спальн. · 4 санузл. · 1 этаж
от 57 096 000 ₽
→
Проект S-706-1K
3 этаж
от 57 892 000 ₽
→
Проект E-693-1K
3 этаж
от 56 826 000 ₽
→
Проект К-104 28 на 13, площадью 701 за 23 568 000 руб
4 спальн. · 2 этаж
от 23 568 000 ₽
→
Проект К-104 28 на 13, площадью 701 за 23 568 000 руб
4 спальн. · 2 этаж
от 19 628 000 ₽
→
Дом Королёв из газобетона: заказать в Москве по низкой цене
2 этаж
от 28 500 000 ₽
→
На сайт застройщика