Перейти к контенту
Подбор и сравнение проектов домов от застройщиков Московской области
Подборщик домов
Калькулятор сметы
Калькулятор площади
Форум
Блог
Главная
›
Каталог проектов
›
Проект T-110-2P
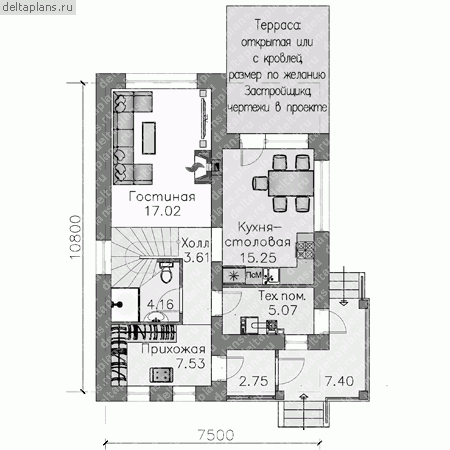
Проект T-110-2P
Застройщик: Юникс-Строй
110.3 м²
1 / 3
🏠
110.3 м²
📐
2 этаж
🧱
Пеноблок
Похожие проекты
Похожие по цене
Похожие по площади
Проект T-110-1P
2 этаж
от 7 721 000 ₽
→
Кирпичный дом С-148 К «Фроджи»
3 спальн. · 1 санузл. · 3 этаж
от 7 722 000 ₽
→
Проект К-115 13 на 15, площадью 194 за 7 724 250 руб
3 спальн. · 1 этаж
от 7 724 250 ₽
→
Проект дома из газоблоков 14х10 ГББ-110: цена 7333000 руб.
2 спальн. · 1 санузл. · 1 этаж
от 9 081 000 ₽
→
Проект дома из керамоблоков 14х10 ТКБ-110: цена 7290000 руб.
2 спальн. · 1 санузл. · 1 этаж
от 9 664 000 ₽
→
Проект T-110-1P
2 этаж
от 7 721 000 ₽
→
На сайт застройщика