Перейти к контенту
Подбор и сравнение проектов домов от застройщиков Московской области
Подборщик домов
Калькулятор сметы
Калькулятор площади
Форум
Блог
Главная
›
Каталог проектов
›
Проект T-111-1P
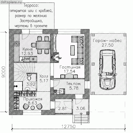
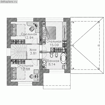
Проект T-111-1P
Застройщик: Юникс-Строй
111.2 м²
1 / 3
🏠
111.2 м²
📐
2 этаж
🧱
Пеноблок
Похожие проекты
Похожие по цене
Похожие по площади
Проект К-235 12 на 12, площадью 278 за 9 342 000 руб
6 спальн. · 2 этаж
от 7 784 000 ₽
→
Традиция 12
5 спальн. · 3 санузл. · 2 этаж
от 7 784 000 ₽
→
Традиция 12
5 спальн. · 3 санузл. · 2 этаж
от 7 784 000 ₽
→
Проект T-110-1K
2 этаж
от 9 126 600 ₽
→
Проект T-110-2K
2 этаж
от 9 126 600 ₽
→
Проект одноэтажного дома "Перспектива (одноэтажная)" из бруса
2 спальн. · 1 этаж
от 8 745 874 ₽
→
На сайт застройщика