Перейти к контенту
Подбор и сравнение проектов домов от застройщиков Московской области
Подборщик домов
Калькулятор сметы
Калькулятор площади
Форум
Блог
Главная
›
Каталог проектов
›
Проект T-111-2P
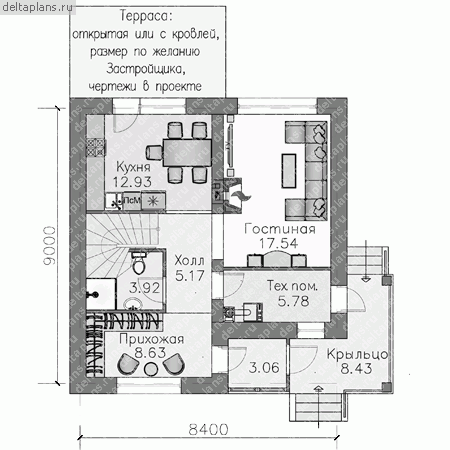
Проект T-111-2P
Застройщик: Юникс-Строй
114.1 м²
1 / 3
🏠
114.1 м²
📐
2 этаж
🧱
Пеноблок
Похожие проекты
Похожие по цене
Похожие по площади
СК-1
2 санузл. · 1 этаж
от 7 990 000 ₽
→
Проект дома «Абрикос» | ЭкоТех
2 спальн. · 2 санузл. · 1 этаж
от 7 992 000 ₽
→
Проекты домов из газобетона Вилла M под ключ
3 спальн. · 2 санузл. · 2 этаж
от 7 992 700 ₽
→
Дом каркасный "Данвил"
4 спальн. · 2 санузл. · 2 этаж
от 7 980 000 ₽
→
Проект одноэтажного дома "Роби" из бруса
3 спальн. · 2 этаж
от 8 626 866 ₽
→
Каркасный дом «Петергоф
от 6 310 000 ₽
→
На сайт застройщика