Перейти к контенту
Подбор и сравнение проектов домов от застройщиков Московской области
Подборщик домов
Калькулятор сметы
Калькулятор площади
Форум
Блог
Главная
›
Каталог проектов
›
Проект T-123-1P
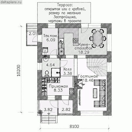
Проект T-123-1P
Застройщик: Юникс-Строй
122.73 м²
1 / 3
🏠
122.73 м²
📐
2 этаж
🧱
Пеноблок
Похожие проекты
Похожие по цене
Похожие по площади
Проект одноэтажного дома "Чех" (с топочной) из бруса
4 спальн. · 2 этаж
от 8 591 274 ₽
→
Проект К-223 10 на 13, площадью 257 за 8 596 500 руб
5 спальн. · 2 этаж
от 8 596 500 ₽
→
Проект E-104-1K
2 этаж
от 8 585 400 ₽
→
Проект дома «Харпер»
2 спальн. · 2 этаж
от 8 166 200 ₽
→
Дом из оцилиндрованного бревна «Покров» | ЭкоТех
2 спальн. · 1 санузл. · 1 этаж
от 4 640 000 ₽
→
Проект каркасного дома КП-140
3 спальн. · 1 этаж
от 11 500 000 ₽
→
На сайт застройщика