Перейти к контенту
Подбор и сравнение проектов домов от застройщиков Московской области
Подборщик домов
Калькулятор сметы
Калькулятор площади
Форум
Блог
Главная
›
Каталог проектов
›
Проект T-212-1P
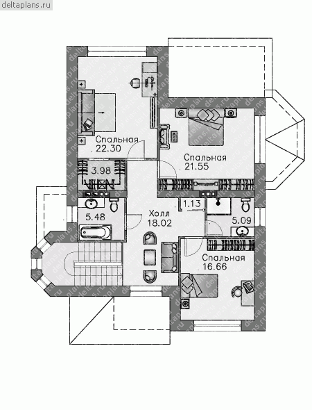
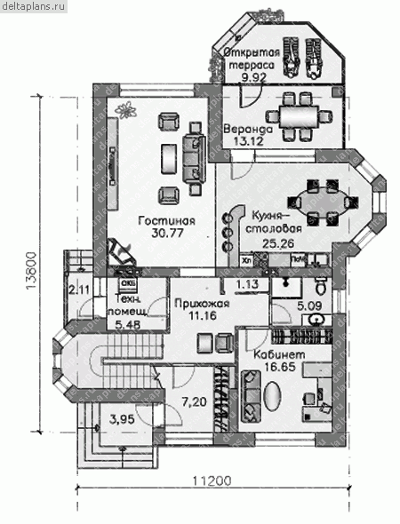
Проект T-212-1P
Застройщик: Юникс-Строй
212.6 м²
1 / 3
🏠
212.6 м²
📐
2 этаж
🧱
Пеноблок
Похожие проекты
Похожие по цене
Похожие по площади
Проект одноэтажного дома "Виридиан" из бруса
3 спальн. · 2 этаж
от 14 880 673 ₽
→
Современный дом с мансардой «Алнесс»
4 спальн. · 3 санузл. · 1 этаж
от 14 892 000 ₽
→
Проект U-181-1K
2 этаж
от 14 868 240 ₽
→
Проект каркасного дома с мансардой Шале XL под ключ от компании БАКО
4 спальн. · 2 санузл. · 2 этаж
от 8 726 300 ₽
→
Проект C-213-1K
3 этаж
от 17 438 120 ₽
→
Проект дома из газоблоков 16х18 ГББ-213: цена 11583000 руб.
4 спальн. · 3 санузл. · 1 этаж
от 15 037 000 ₽
→
На сайт застройщика