Перейти к контенту
Подбор и сравнение проектов домов от застройщиков Московской области
Подборщик домов
Калькулятор сметы
Калькулятор площади
Форум
Блог
Главная
›
Каталог проектов
›
Проект T-274-1P
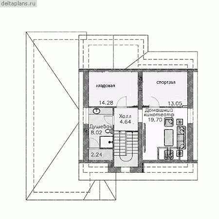
Проект T-274-1P
Застройщик: Юникс-Строй
274.48 м²
1 / 4
🏠
274.48 м²
📐
3 этаж
🧱
Пеноблок
Похожие проекты
Похожие по цене
Похожие по площади
Проект U-278-1P
2 этаж
от 19 210 800 ₽
→
Проект двухэтажного коттеджа "Мамоново" из газобетона
6 спальн. · 3 этаж
от 19 187 000 ₽
→
Проект U-235-1K
2 этаж
от 19 243 760 ₽
→
Проект двухэтажного коттеджа "Хэппи" из газобетона
4 спальн. · 2 этаж
от 12 213 000 ₽
→
Проект одноэтажного коттеджа "Фенхель" из газобетона
3 спальн. · 2 этаж
от 10 600 000 ₽
→
Проект U-274-1K
2 этаж
от 22 504 080 ₽
→
На сайт застройщика