Перейти к контенту
Подбор и сравнение проектов домов от застройщиков Московской области
Подборщик домов
Калькулятор сметы
Калькулятор площади
Форум
Блог
Главная
›
Каталог проектов
›
Проект T-341-1P
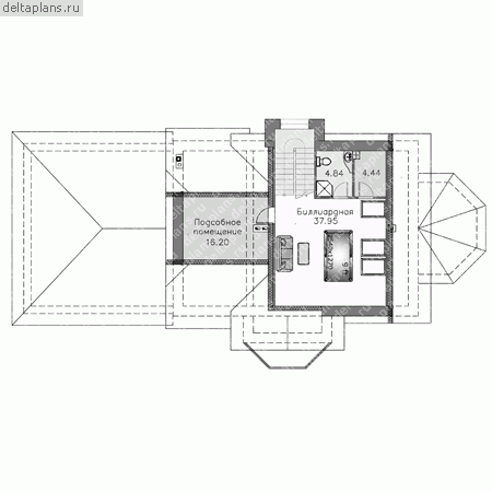
Проект T-341-1P
Застройщик: Юникс-Строй
341.56 м²
1 / 4
🏠
341.56 м²
📐
3 этаж
🧱
Пеноблок
Похожие проекты
Похожие по цене
Похожие по площади
Современный дом с комбинированным фасадом «Темар»
5 спальн. · 5 санузл. · 2 этаж
от 23 916 000 ₽
→
Проект T-291-1K
2 этаж
от 23 894 800 ₽
→
Проект L-296-1K
2 этаж
от 23 892 340 ₽
→
Проект O-356-1K
3 этаж
от 28 019 400 ₽
→
Дом Апрелевка из газобетона: заказать в Москве по низкой цене
4 спальн. · 3 санузл. · 2 этаж
от 13 880 000 ₽
→
Дом Апрелевка из кирпича: заказать в Москве по низкой цене
4 спальн. · 3 санузл. · 2 этаж
от 13 880 000 ₽
→
На сайт застройщика