Перейти к контенту
Подбор и сравнение проектов домов от застройщиков Московской области
Подборщик домов
Калькулятор сметы
Калькулятор площади
Форум
Блог
Главная
›
Каталог проектов
›
Проект U-063-1K
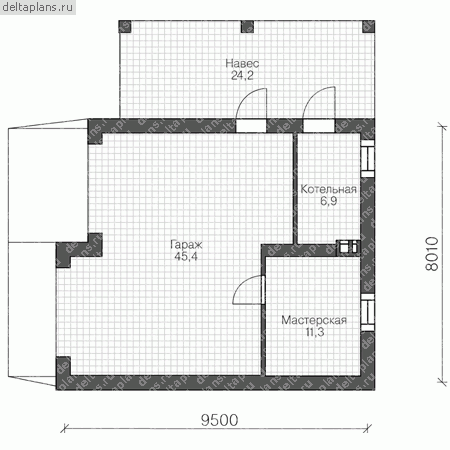
Проект U-063-1K
Застройщик: Юникс-Строй
63.54 м²
1 / 2
🏠
63.54 м²
📐
1 этаж
🧱
Кирпич
Похожие проекты
Похожие по цене
Похожие по площади
Проект дома AS-2226
2 этаж
от 2 543 980 ₽
→
Проект К-5 13 на 5, площадью 65 за 2 583 750 руб
1 спальн. · 1 этаж
от 2 548 000 ₽
→
Лидер 5
4 спальн. · 1 санузл. · 2 этаж
от 2 548 000 ₽
→
Проект каркасного дома КП-70
1 этаж
от 4 300 000 ₽
→
Проект одноэтажного каркасного дома "Кнопка"
2 спальн. · 2 этаж
от 4 690 857 ₽
→
Добрыня М 2
3 спальн. · 1 санузл. · 1 этаж
от 3 319 000 ₽
→
На сайт застройщика