Перейти к контенту
Подбор и сравнение проектов домов от застройщиков Московской области
Подборщик домов
Калькулятор сметы
Калькулятор площади
Форум
Блог
Главная
›
Каталог проектов
›
Проект U-066-1P
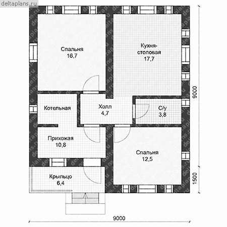
Проект U-066-1P
Застройщик: Юникс-Строй
71.73 м²
1 / 2
🏠
71.73 м²
📐
1 этаж
🧱
Пеноблок
Похожие проекты
Похожие по цене
Похожие по площади
Саров (9x9)
2 спальн. · 1 санузл. · 1 этаж
от 5 022 000 ₽
→
Бордо 3
5 спальн. · 3 санузл. · 2 этаж
от 5 028 000 ₽
→
Бордо 3
5 спальн. · 3 санузл. · 2 этаж
от 5 028 000 ₽
→
Проект одноэтажного каркасного дома "Капелла с мансардой"
2 спальн. · 2 этаж
от 5 394 942 ₽
→
Саров (9x9)
2 спальн. · 1 санузл. · 1 этаж
от 5 022 000 ₽
→
Строительство каркасного дома 10,3х8,15 "Барни" под ключ
3 спальн. · 1 санузл. · 1 этаж
от 3 853 000 ₽
→
На сайт застройщика