Перейти к контенту
Подбор и сравнение проектов домов от застройщиков Московской области
Подборщик домов
Калькулятор сметы
Калькулятор площади
Форум
Блог
Главная
›
Каталог проектов
›
Проект U-087-1P
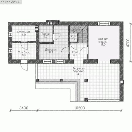
Проект U-087-1P
Застройщик: Юникс-Строй
87.95 м²
1 / 3
🏠
87.95 м²
📐
2 этаж
🧱
Пеноблок
Похожие проекты
Похожие по цене
Похожие по площади
Аллебро 120
3 спальн. · 1 этаж
от 6 156 403 ₽
→
Дом из газобетона Проект ГБ-188
3 спальн. · 2 санузл. · 2 этаж
от 6 159 000 ₽
→
Варяг 2
6 спальн. · 2 санузл. · 2 этаж
от 6 159 572 ₽
→
Проект одноэтажного дома "Страдивари (одноэтажный)" из бруса
4 спальн. · 1 этаж
от 7 741 109 ₽
→
Проект одноэтажного каркасного дома "Кибела"
3 спальн. · 2 этаж
от 6 400 779 ₽
→
Каркасный дом «Левашово
от 7 400 000 ₽
→
На сайт застройщика