Перейти к контенту
Подбор и сравнение проектов домов от застройщиков Московской области
Подборщик домов
Калькулятор сметы
Калькулятор площади
Форум
Блог
Главная
›
Каталог проектов
›
Проект U-093-1K
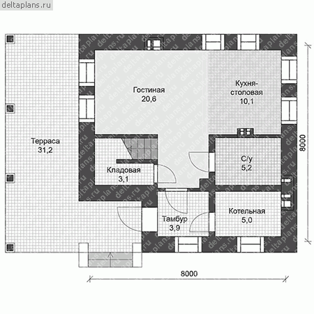
Проект U-093-1K
Застройщик: Юникс-Строй
93.2 м²
1 / 3
🏠
93.2 м²
📐
2 этаж
🧱
Кирпич
Похожие проекты
Похожие по цене
Похожие по площади
Аврора 2
4 спальн. · 3 санузл. · 2 этаж
от 7 639 800 ₽
→
Проект одноэтажного коттеджа "Вересень" из газобетона
2 спальн. · 2 этаж
от 7 648 000 ₽
→
Проект каркасного дома КП-173
1 этаж
от 7 650 000 ₽
→
Проект дома «Шемблз»
2 спальн. · 2 этаж
от 6 197 800 ₽
→
Проект одноэтажного дома "Печки-лавочки" из бруса
2 спальн. · 2 этаж
от 6 572 044 ₽
→
Проект одноэтажного каркасного дома "Печки-ЛавочкиК"
4 спальн. · 2 этаж
от 6 903 697 ₽
→
На сайт застройщика