Перейти к контенту
Подбор и сравнение проектов домов от застройщиков Московской области
Подборщик домов
Калькулятор сметы
Калькулятор площади
Форум
Блог
Главная
›
Каталог проектов
›
Проект U-117-1K
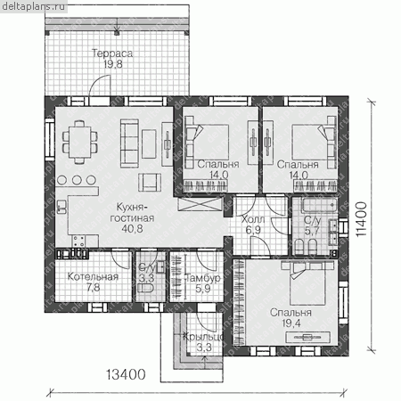
Проект U-117-1K
Застройщик: Юникс-Строй
118.48 м²
1 / 2
🏠
118.48 м²
📐
1 этаж
🧱
Кирпич
Похожие проекты
Похожие по цене
Похожие по площади
Проект одноэтажного дома "Опалево-М1" из бруса
5 спальн. · 2 этаж
от 9 719 832 ₽
→
Проект одноэтажного коттеджа "Красная шапочка КД" из газобетона
4 спальн. · 2 этаж
от 9 720 000 ₽
→
Проект К-204 9 на 16, площадью 292 за 9 720 000 руб
5 спальн. · 2 этаж
от 9 720 000 ₽
→
Проект T-118-1P
2 этаж
от 8 295 000 ₽
→
Строительство каркасного дома 13х10 "Элегия" под ключ
4 спальн. · 2 санузл. · 1 этаж
от 5 594 000 ₽
→
«ТОПДОМ 1.260»
1 этаж
от 12 900 000 ₽
→
На сайт застройщика