Перейти к контенту
Подбор и сравнение проектов домов от застройщиков Московской области
Подборщик домов
Калькулятор сметы
Калькулятор площади
Форум
Блог
Главная
›
Каталог проектов
›
Проект U-120-1P
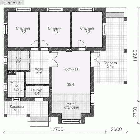
Проект U-120-1P
Застройщик: Юникс-Строй
119.34 м²
1 / 2
🏠
119.34 м²
📐
1 этаж
🧱
Пеноблок
Похожие проекты
Похожие по цене
Похожие по площади
Проект одноэтажного каркасного дома "Калибан"
3 спальн. · 1 этаж
от 8 355 303 ₽
→
Проект каркасного дома КП-174
1 этаж
от 8 350 000 ₽
→
Проект К-161 15 на 8, площадью 253 за 8 361 000 руб
4 спальн. · 2 этаж
от 8 361 000 ₽
→
Каркасный дом 10x7 Проект "Янтарь"
3 спальн. · 1 санузл. · 2 этаж
от 2 814 000 ₽
→
Проект каркасного дома КП-812
2 спальн. · 1 этаж
от 7 600 000 ₽
→
Каркасный дом 9x8 Проект "Сардоникс"
4 спальн. · 1 санузл. · 2 этаж
от 2 593 000 ₽
→
На сайт застройщика