Перейти к контенту
Подбор и сравнение проектов домов от застройщиков Московской области
Подборщик домов
Калькулятор сметы
Калькулятор площади
Форум
Блог
Главная
›
Каталог проектов
›
Проект U-122-1P
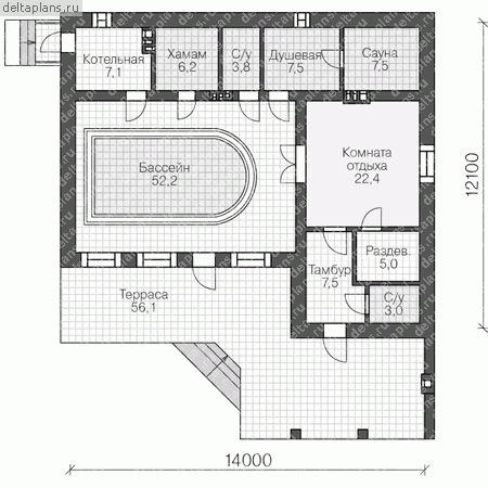
Проект U-122-1P
Застройщик: Юникс-Строй
122.21 м²
1 / 2
🏠
122.21 м²
📐
1 этаж
🧱
Пеноблок
Похожие проекты
Похожие по цене
Похожие по площади
Проект одноэтажного дома "Камелия" из бревна
4 спальн. · 2 этаж
от 8 557 731 ₽
→
Проект одноэтажного дома "Камелот" из бруса
3 спальн. · 2 этаж
от 8 559 471 ₽
→
Уэльс 22
2 санузл. · 2 этаж
от 8 559 800 ₽
→
Проект M-122-1P
2 этаж
от 8 561 000 ₽
→
Проект двухэтажного дома "Елена" из бруса
2 спальн. · 2 этаж
от 9 258 545 ₽
→
Проект каркасного дома с мансардой Звенигород L под ключ от компании БАКО
3 спальн. · 2 санузл. · 2 этаж
от 5 883 900 ₽
→
На сайт застройщика