Перейти к контенту
Подбор и сравнение проектов домов от застройщиков Московской области
Подборщик домов
Калькулятор сметы
Калькулятор площади
Форум
Блог
Главная
›
Каталог проектов
›
Проект U-126-1P
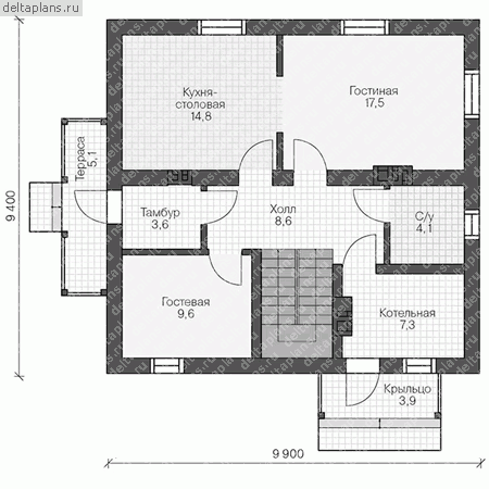
Проект U-126-1P
Застройщик: Юникс-Строй
126.88 м²
1 / 3
🏠
126.88 м²
📐
2 этаж
🧱
Пеноблок
Похожие проекты
Похожие по цене
Похожие по площади
Проект дома AS-2301
2 этаж
от 8 883 000 ₽
→
Проект P-127-1P
2 этаж
от 8 883 000 ₽
→
Двухэтажный дом 4 спальни №354
2 этаж
от 8 879 350 ₽
→
Проект D-126-2D
2 санузл. · 2 этаж
от 19 035 000 ₽
→
Проект N-127-1D
2 этаж
от 19 035 000 ₽
→
Проект P-127-1P
2 этаж
от 8 883 000 ₽
→
На сайт застройщика