Перейти к контенту
Подбор и сравнение проектов домов от застройщиков Московской области
Подборщик домов
Калькулятор сметы
Калькулятор площади
Форум
Блог
Главная
›
Каталог проектов
›
Проект U-133-1P
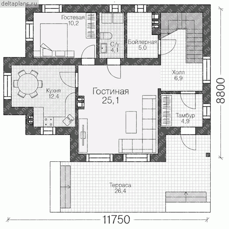
Проект U-133-1P
Застройщик: Юникс-Строй
135.07 м²
1 / 3
🏠
135.07 м²
📐
2 этаж
🧱
Пеноблок
Похожие проекты
Похожие по цене
Похожие по площади
Проект U-130-1P
2 этаж
от 9 454 900 ₽
→
Проект W-116-1K
2 этаж
от 9 454 600 ₽
→
Проект дома F-135-1P
2 этаж
от 9 452 800 ₽
→
Проект U-130-1P
2 этаж
от 9 454 900 ₽
→
Проект дома F-135-1P
2 этаж
от 9 452 800 ₽
→
Проект одноэтажного дома "Опалево-М2" из бруса
5 спальн. · 2 этаж
от 11 035 354 ₽
→
На сайт застройщика