Перейти к контенту
Подбор и сравнение проектов домов от застройщиков Московской области
Подборщик домов
Калькулятор сметы
Калькулятор площади
Форум
Блог
Главная
›
Каталог проектов
›
Проект U-134-1P
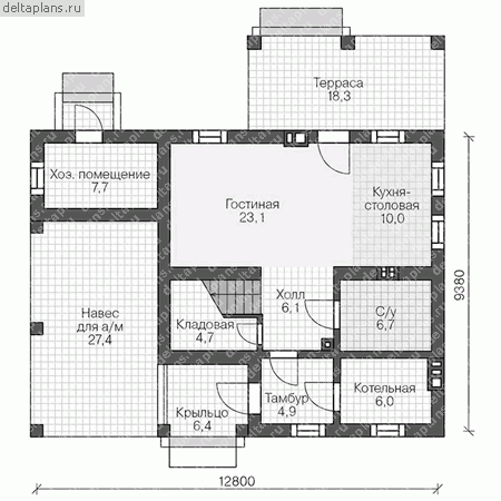
Проект U-134-1P
Застройщик: Юникс-Строй
134.48 м²
1 / 3
🏠
134.48 м²
📐
2 этаж
🧱
Пеноблок
Похожие проекты
Похожие по цене
Похожие по площади
Проект B-133-1P
2 этаж
от 9 412 200 ₽
→
Проект К-238 15 на 11, площадью 336 за 11 175 750 руб
5 спальн. · 2 этаж
от 9 408 000 ₽
→
Проект T-134-1P
2 этаж
от 9 408 000 ₽
→
Проект B-133-1P
2 этаж
от 9 412 200 ₽
→
Проект T-134-1P
2 этаж
от 9 408 000 ₽
→
Проект дома F-133-1P
2 этаж
от 9 405 200 ₽
→
На сайт застройщика