Перейти к контенту
Подбор и сравнение проектов домов от застройщиков Московской области
Подборщик домов
Калькулятор сметы
Калькулятор площади
Форум
Блог
Главная
›
Каталог проектов
›
Проект U-142-1P
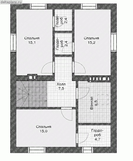
Проект U-142-1P
Застройщик: Юникс-Строй
142.64 м²
1 / 4
🏠
142.64 м²
📐
3 этаж
🧱
Пеноблок
Похожие проекты
Похожие по цене
Похожие по площади
Проект одноэтажного дома "Арабика" из бруса
3 спальн. · 2 этаж
от 9 985 675 ₽
→
Каркасные дома Стокгольм M под ключ
2 спальн. · 1 санузл. · 1 этаж
от 9 993 500 ₽
→
Проект V-142-1P
3 этаж
от 9 996 700 ₽
→
Проект M-143-1D
2 этаж
от 21 387 000 ₽
→
Проект каркасного дома с мансардой Бавария S+ под ключ от компании БАКО
3 спальн. · 2 санузл. · 2 этаж
от 6 530 600 ₽
→
Проект одноэтажного дома "Ависсо" из бревна
1 спальн. · 1 этаж
от 8 314 682 ₽
→
На сайт застройщика