Перейти к контенту
Подбор и сравнение проектов домов от застройщиков Московской области
Подборщик домов
Калькулятор сметы
Калькулятор площади
Форум
Блог
Главная
›
Каталог проектов
›
Проект U-144-1K
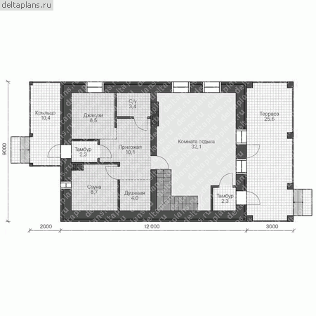
Проект U-144-1K
Застройщик: Юникс-Строй
143.65 м²
1 / 3
🏠
143.65 м²
📐
2 этаж
🧱
Кирпич
Похожие проекты
Похожие по цене
Похожие по площади
Проект дома из газоблоков 10х11 ГББ-147: цена 7669000 руб.
4 спальн. · 3 санузл. · 2 этаж
от 11 780 000 ₽
→
Проект V-168-1P
3 этаж
от 11 781 000 ₽
→
Проект R-168-1P
2 этаж
от 11 776 800 ₽
→
Проект U-144-2P
2 этаж
от 10 052 700 ₽
→
Проект двухэтажного каркасного дома Вилла M под ключ от компании БАКО
4 спальн. · 2 санузл. · 2 этаж
от 6 564 400 ₽
→
Проект двухэтажного каркасного дома Тетрис M под ключ от компании БАКО
4 спальн. · 2 санузл. · 2 этаж
от 7 369 700 ₽
→
На сайт застройщика