Перейти к контенту
Подбор и сравнение проектов домов от застройщиков Московской области
Подборщик домов
Калькулятор сметы
Калькулятор площади
Форум
Блог
Главная
›
Каталог проектов
›
Проект U-150-1P
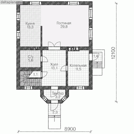
Проект U-150-1P
Застройщик: Юникс-Строй
150.0 м²
1 / 3
🏠
150.0 м²
📐
2 этаж
🧱
Пеноблок
Похожие проекты
Похожие по цене
Похожие по площади
Проект дома H-150-1P
2 этаж
от 10 500 000 ₽
→
Проект дома X-150-1P
2 этаж
от 10 500 000 ₽
→
Дом из газобетонных блоков С-234 ГБ «Дион»
3 спальн. · 2 санузл. · 3 этаж
от 10 499 000 ₽
→
Проект одноэтажного дома "Опалево-М3" из бруса
5 спальн. · 2 этаж
от 10 522 580 ₽
→
Проект одноэтажного дома "Радуга" из бруса
3 спальн. · 2 этаж
от 10 726 805 ₽
→
Проект одноэтажного дома "Шале" из бруса
2 этаж
от 9 639 261 ₽
→
На сайт застройщика