Перейти к контенту
Подбор и сравнение проектов домов от застройщиков Московской области
Подборщик домов
Калькулятор сметы
Калькулятор площади
Форум
Блог
Главная
›
Каталог проектов
›
Проект U-157-1D
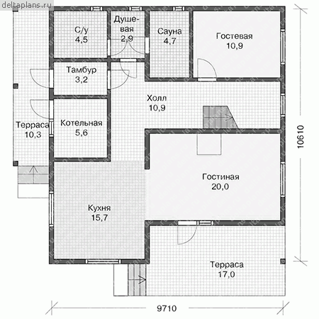
Проект U-157-1D
Застройщик: Юникс-Строй
156.93 м²
1 / 3
🏠
156.93 м²
📐
2 этаж
🧱
Дерево
Похожие проекты
Похожие по цене
Похожие по площади
Проект дома V-337-1P
3 этаж
от 23 541 000 ₽
→
Проект K-279-1K
3 этаж
от 23 534 000 ₽
→
Проект «Brownwood»
3 спальн. · 4 санузл. · 2 этаж
от 23 550 000 ₽
→
Ривьера 1
6 спальн. · 3 санузл. · 2 этаж
от 6 685 000 ₽
→
Ривьера 1
6 спальн. · 3 санузл. · 2 этаж
от 6 685 000 ₽
→
Проект C-157-1P
2 этаж
от 10 983 700 ₽
→
На сайт застройщика