Перейти к контенту
Подбор и сравнение проектов домов от застройщиков Московской области
Подборщик домов
Калькулятор сметы
Калькулятор площади
Форум
Блог
Главная
›
Каталог проектов
›
Проект U-162-1K
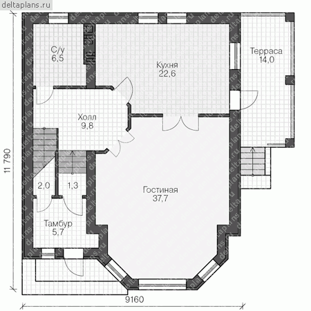
Проект U-162-1K
Застройщик: Юникс-Строй
161.78 м²
1 / 3
🏠
161.78 м²
📐
2 этаж
🧱
Кирпич
Похожие проекты
Похожие по цене
Похожие по площади
Проект V-189-1P
2 этаж
от 13 269 900 ₽
→
Проект U-189-1P
2 этаж
от 13 260 800 ₽
→
Проект дома L-189-1P
2 этаж
от 13 258 000 ₽
→
Дом из газобетона "Элкфорд"
3 спальн. · 2 санузл. · 2 этаж
от 8 160 000 ₽
→
Проект G-162-1P
2 этаж
от 11 326 000 ₽
→
Акварель 6
5 спальн. · 2 санузл. · 1 этаж
от 7 227 000 ₽
→
На сайт застройщика