Перейти к контенту
Подбор и сравнение проектов домов от застройщиков Московской области
Подборщик домов
Калькулятор сметы
Калькулятор площади
Форум
Блог
Главная
›
Каталог проектов
›
Проект U-163-1K
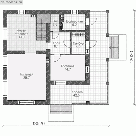
Проект U-163-1K
Застройщик: Юникс-Строй
162.9 м²
1 / 3
🏠
162.9 м²
📐
2 этаж
🧱
Кирпич
Похожие проекты
Похожие по цене
Похожие по площади
Проект B-163-1K
2 этаж
от 13 366 000 ₽
→
Проект одноэтажного каркасного дома "Премиум"
4 спальн. · 2 этаж
от 13 366 822 ₽
→
Проект C-191-1P
2 этаж
от 13 346 900 ₽
→
Проект дома из газоблоков 21х10 ГББ-164: цена 10250000 руб.
5 спальн. · 2 санузл. · 1 этаж
от 12 775 000 ₽
→
Проект дома из керамоблоков 21х10 ТКБ-164: цена 10418000 руб.
5 спальн. · 2 санузл. · 1 этаж
от 13 829 000 ₽
→
Каркасный дом «Вербена» | ЭкоТех
3 спальн. · 2 санузл. · 2 этаж
от 5 989 000 ₽
→
На сайт застройщика