Перейти к контенту
Подбор и сравнение проектов домов от застройщиков Московской области
Подборщик домов
Калькулятор сметы
Калькулятор площади
Форум
Блог
Главная
›
Каталог проектов
›
Проект U-168-1K
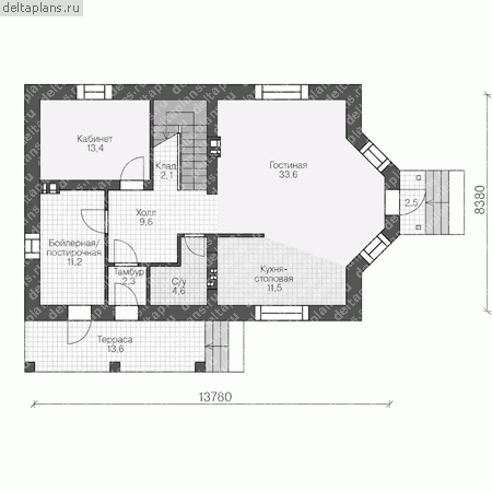
Проект U-168-1K
Застройщик: Юникс-Строй
168.93 м²
1 / 3
🏠
168.93 м²
📐
2 этаж
🧱
Кирпич
Похожие проекты
Похожие по цене
Похожие по площади
Проект V-198-1P
2 этаж
от 13 846 700 ₽
→
Проект F-156-2K
3 этаж
от 13 858 000 ₽
→
Проект W-169-1K
1 этаж
от 13 858 000 ₽
→
Проект одноэтажного дома "Стелс" из бруса
3 спальн. · 2 этаж
от 12 414 825 ₽
→
Каркасный дом «Мельниково
от 14 295 000 ₽
→
Дом 3 спальни, второй свет № 363
2 этаж
от 12 609 600 ₽
→
На сайт застройщика