Перейти к контенту
Подбор и сравнение проектов домов от застройщиков Московской области
Подборщик домов
Калькулятор сметы
Калькулятор площади
Форум
Блог
Главная
›
Каталог проектов
›
Проект U-179-1K
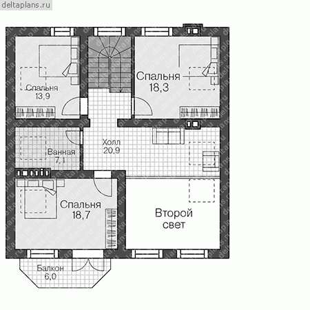
Проект U-179-1K
Застройщик: Юникс-Строй
179.14 м²
1 / 3
🏠
179.14 м²
📐
2 этаж
🧱
Кирпич
Похожие проекты
Похожие по цене
Похожие по площади
Дом из газобетонных блоков С-320 ГБ «Екатериновка»
4 спальн. · 3 санузл. · 4 этаж
от 14 693 000 ₽
→
Дом из керамических блоков С-320 КЕ «Екатериновка»
4 спальн. · 3 санузл. · 4 этаж
от 14 693 000 ₽
→
Проект дома «Зеллман»
5 спальн. · 2 этаж
от 14 693 242 ₽
→
Проект одноэтажного коттеджа "Гуси-лебеди" из газобетона
3 спальн. · 2 этаж
от 10 214 000 ₽
→
Проект одноэтажного коттеджа "Свирель" из газобетона
3 спальн. · 2 этаж
от 9 671 000 ₽
→
Проект дома J-182-1P
2 этаж
от 12 546 100 ₽
→
На сайт застройщика