Перейти к контенту
Подбор и сравнение проектов домов от застройщиков Московской области
Подборщик домов
Калькулятор сметы
Калькулятор площади
Форум
Блог
Главная
›
Каталог проектов
›
Проект U-182-1P
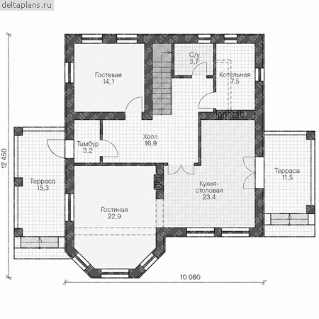
Проект U-182-1P
Застройщик: Юникс-Строй
171.6 м²
1 / 3
🏠
171.6 м²
📐
2 этаж
🧱
Пеноблок
Похожие проекты
Похожие по цене
Похожие по площади
Проект К-231 18 на 10, площадью 360 за 12 015 000 руб
6 спальн. · 2 этаж
от 12 015 000 ₽
→
Проект одноэтажного дома "Обухово" из бруса
5 спальн. · 2 этаж
от 12 007 735 ₽
→
Проект одноэтажного дома "Оригами-2" из бруса
2 спальн. · 2 этаж
от 12 005 231 ₽
→
Проект U-171-2K
2 этаж
от 14 071 200 ₽
→
Проект D-172-1D
3 этаж
от 25 743 000 ₽
→
Проект двухэтажного коттеджа "Галлант-2" из газобетона
5 спальн. · 2 этаж
от 10 131 000 ₽
→
На сайт застройщика