Перейти к контенту
Подбор и сравнение проектов домов от застройщиков Московской области
Подборщик домов
Калькулятор сметы
Калькулятор площади
Форум
Блог
Главная
›
Каталог проектов
›
Проект U-183-2P
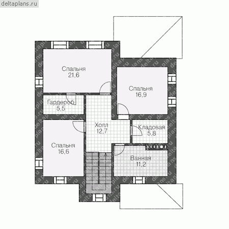
Проект U-183-2P
Застройщик: Юникс-Строй
183.25 м²
1 / 3
🏠
183.25 м²
📐
2 этаж
🧱
Пеноблок
Похожие проекты
Похожие по цене
Похожие по площади
Проект H-183-1P
2 этаж
от 12 824 000 ₽
→
Проект J-183-1P
2 этаж
от 12 831 000 ₽
→
Проект дома U-183-1P
2 этаж
от 12 831 000 ₽
→
Проект U-183-1K
2 этаж
от 15 024 860 ₽
→
Проект одноэтажного дома "Георгин" из бруса
4 спальн. · 2 этаж
от 11 936 003 ₽
→
Енисей 5 (9x11)
5 спальн. · 5 санузл. · 2 этаж
от 9 386 000 ₽
→
На сайт застройщика