Перейти к контенту
Подбор и сравнение проектов домов от застройщиков Московской области
Подборщик домов
Калькулятор сметы
Калькулятор площади
Форум
Блог
Главная
›
Каталог проектов
›
Проект U-188-1K
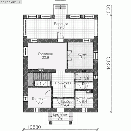
Проект U-188-1K
Застройщик: Юникс-Строй
187.34 м²
1 / 3
🏠
187.34 м²
📐
2 этаж
🧱
Кирпич
Похожие проекты
Похожие по цене
Похожие по площади
Проект W-187-1K
2 этаж
от 15 358 600 ₽
→
Проект двухэтажного дома "Марсель" из бруса
5 спальн. · 2 этаж
от 15 369 495 ₽
→
Проект M-219-1P
2 этаж
от 15 372 000 ₽
→
Проект M-187-1D
2 этаж
от 28 102 500 ₽
→
Проект D-187-1D
2 этаж
от 28 095 000 ₽
→
Проект W-187-1K
2 этаж
от 15 358 600 ₽
→
На сайт застройщика