Перейти к контенту
Подбор и сравнение проектов домов от застройщиков Московской области
Подборщик домов
Калькулятор сметы
Калькулятор площади
Форум
Блог
Главная
›
Каталог проектов
›
Проект U-190-1P
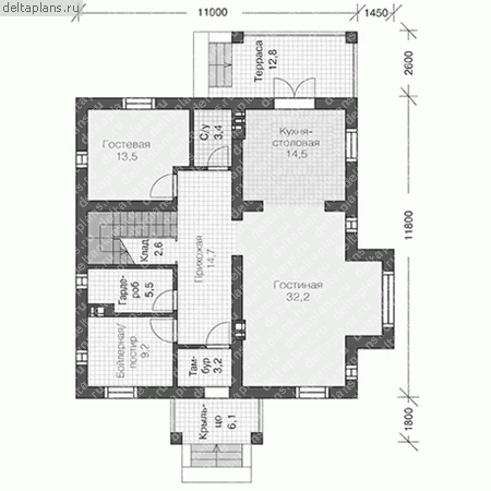
Проект U-190-1P
Застройщик: Юникс-Строй
190.51 м²
1 / 3
🏠
190.51 м²
📐
2 этаж
🧱
Пеноблок
Похожие проекты
Похожие по цене
Похожие по площади
Проект дома из керамоблоков 13х9 ТКБ-195: цена 7775000 руб.
5 спальн. · 2 санузл. · 2 этаж
от 13 335 000 ₽
→
Проект дома E-191-1P
2 этаж
от 13 335 000 ₽
→
Проект U-191-1P
2 этаж
от 13 332 200 ₽
→
Проект двухэтажного каркасного дома "Ригель"
6 спальн. · 2 этаж
от 13 487 356 ₽
→
Проект дома E-191-1P
2 этаж
от 13 335 000 ₽
→
Проект U-191-1P
2 этаж
от 13 332 200 ₽
→
На сайт застройщика