Перейти к контенту
Подбор и сравнение проектов домов от застройщиков Московской области
Подборщик домов
Калькулятор сметы
Калькулятор площади
Форум
Блог
Главная
›
Каталог проектов
›
Проект U-193-1P
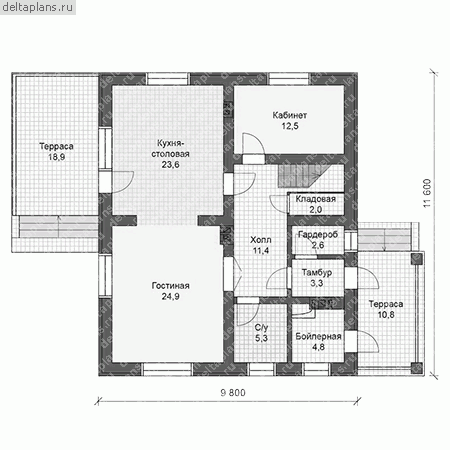
Проект U-193-1P
Застройщик: Юникс-Строй
170.82 м²
1 / 3
🏠
170.82 м²
📐
2 этаж
🧱
Пеноблок
Похожие проекты
Похожие по цене
Похожие по площади
Двухэтажный дом №372
2 этаж
от 11 958 500 ₽
→
Дом 5 спален с террасой №372
2 этаж
от 11 958 500 ₽
→
Проект одноэтажного коттеджа "Белор" из газобетона
5 спальн. · 2 этаж
от 11 959 000 ₽
→
Проект U-170-1K
1 этаж
от 14 007 240 ₽
→
Проект N-171-1K
2 этаж
от 14 005 600 ₽
→
Проект S-171-1K
1 этаж
от 14 005 600 ₽
→
На сайт застройщика