Перейти к контенту
Подбор и сравнение проектов домов от застройщиков Московской области
Подборщик домов
Калькулятор сметы
Калькулятор площади
Форум
Блог
Главная
›
Каталог проектов
›
Проект U-194-2P
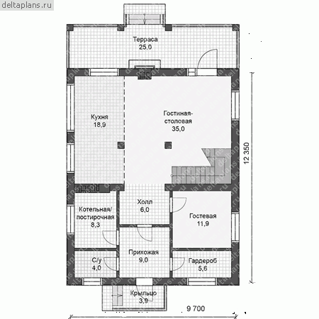
Проект U-194-2P
Застройщик: Юникс-Строй
194.4 м²
1 / 3
🏠
194.4 м²
📐
2 этаж
🧱
Пеноблок
Похожие проекты
Похожие по цене
Похожие по площади
Проект U-194-1P
2 этаж
от 13 608 000 ₽
→
Проект R-166-1K
1 этаж
от 13 612 000 ₽
→
Проект двухэтажного коттеджа "Саам" из газобетона
4 спальн. · 2 этаж
от 13 596 000 ₽
→
Проект E-194-1K
2 этаж
от 15 940 800 ₽
→
Проект U-194-1P
2 этаж
от 13 608 000 ₽
→
Проект E-194-2K
2 этаж
от 15 937 520 ₽
→
На сайт застройщика