Перейти к контенту
Подбор и сравнение проектов домов от застройщиков Московской области
Подборщик домов
Калькулятор сметы
Калькулятор площади
Форум
Блог
Главная
›
Каталог проектов
›
Проект U-196-1P
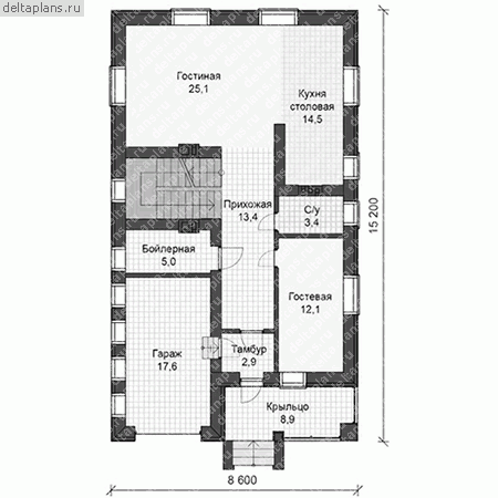
Проект U-196-1P
Застройщик: Юникс-Строй
206.66 м²
1 / 5
🏠
206.66 м²
📐
3 этаж
🧱
Пеноблок
Похожие проекты
Похожие по цене
Похожие по площади
Проект дома из керамоблоков 16х13 ТКБ-262: цена 8483000 руб.
4 спальн. · 2 санузл. · 2 этаж
от 14 465 000 ₽
→
Проект D-096-1D
2 этаж
от 14 460 000 ₽
→
Проект T-177-1K
2 этаж
от 14 473 000 ₽
→
Проект двухэтажного коттеджа "Разумник" из газобетона
4 спальн. · 2 этаж
от 9 733 000 ₽
→
Проект F-208-1K
2 этаж
от 16 956 780 ₽
→
Проект дома AS-2094
3 этаж
от 8 458 120 ₽
→
На сайт застройщика