Перейти к контенту
Подбор и сравнение проектов домов от застройщиков Московской области
Подборщик домов
Калькулятор сметы
Калькулятор площади
Форум
Блог
Главная
›
Каталог проектов
›
Проект U-200-1P
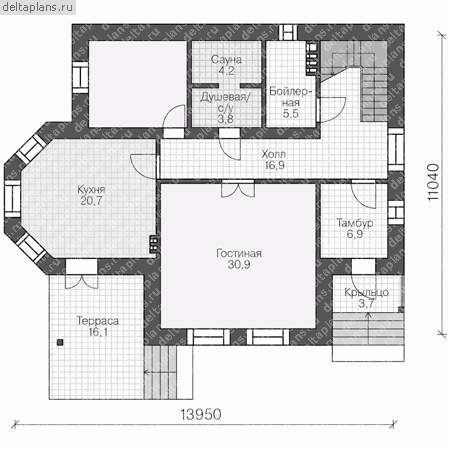
Проект U-200-1P
Застройщик: Юникс-Строй
200.97 м²
1 / 3
🏠
200.97 м²
📐
2 этаж
🧱
Пеноблок
Похожие проекты
Похожие по цене
Похожие по площади
Проект V-201-1P
2 этаж
от 14 070 000 ₽
→
Проект одноэтажного каркасного дома "Тефия"
4 спальн. · 2 этаж
от 14 065 088 ₽
→
Проект U-171-2K
2 этаж
от 14 071 200 ₽
→
Проект одноэтажного дома "Кедр" из бруса
4 спальн. · 2 этаж
от 14 022 450 ₽
→
Проект дома №374
2 этаж
от 13 276 900 ₽
→
Проект A-201-1D
3 этаж
от 30 150 000 ₽
→
На сайт застройщика