Перейти к контенту
Подбор и сравнение проектов домов от застройщиков Московской области
Подборщик домов
Калькулятор сметы
Калькулятор площади
Форум
Блог
Главная
›
Каталог проектов
›
Проект U-205-1K
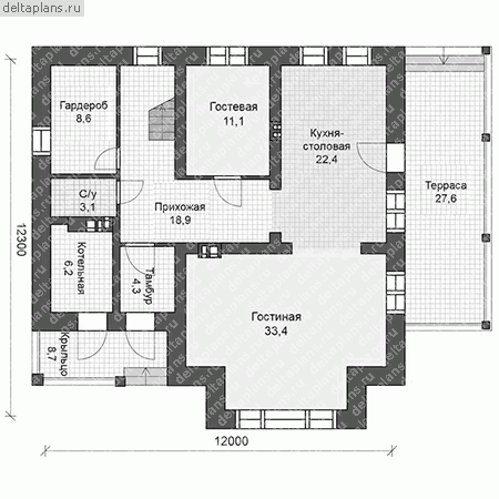
Проект U-205-1K
Застройщик: Юникс-Строй
203.36 м²
1 / 3
🏠
203.36 м²
📐
2 этаж
🧱
Кирпич
Похожие проекты
Похожие по цене
Похожие по площади
Проект S-204-1K
2 этаж
от 16 687 000 ₽
→
Проект U-203-1K
2 этаж
от 16 688 640 ₽
→
Проект V-203-1K
2 санузл. · 2 этаж
от 16 658 300 ₽
→
Проект одноэтажного дома "Романово-2" из бруса
2 спальн. · 2 этаж
от 14 679 231 ₽
→
Проект H-131-2P
3 этаж
от 14 243 600 ₽
→
Проект U-203-1P
2 этаж
от 14 226 800 ₽
→
На сайт застройщика