Перейти к контенту
Подбор и сравнение проектов домов от застройщиков Московской области
Подборщик домов
Калькулятор сметы
Калькулятор площади
Форум
Блог
Главная
›
Каталог проектов
›
Проект U-205-1P
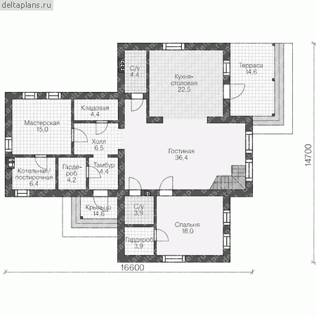
Проект U-205-1P
Застройщик: Юникс-Строй
205.79 м²
1 / 3
🏠
205.79 м²
📐
2 этаж
🧱
Пеноблок
Похожие проекты
Похожие по цене
Похожие по площади
Проект двухэтажного дома "Рудные горы" из бруса
5 спальн. · 2 этаж
от 14 400 651 ₽
→
Проект одноэтажного дома "Осин" из бруса
5 спальн. · 2 этаж
от 14 400 651 ₽
→
Проект O-172-1K
2 этаж
от 14 399 200 ₽
→
Проект одноэтажного коттеджа "Ревель" из газобетона
5 спальн. · 2 этаж
от 10 046 000 ₽
→
Каркасный дом 11.3x10.3 Проект "Лазурит"
4 спальн. · 1 санузл. · 2 этаж
от 3 348 000 ₽
→
Проект E-205-1P
2 этаж
от 14 411 600 ₽
→
На сайт застройщика