Перейти к контенту
Подбор и сравнение проектов домов от застройщиков Московской области
Подборщик домов
Калькулятор сметы
Калькулятор площади
Форум
Блог
Главная
›
Каталог проектов
›
Проект U-208-1S
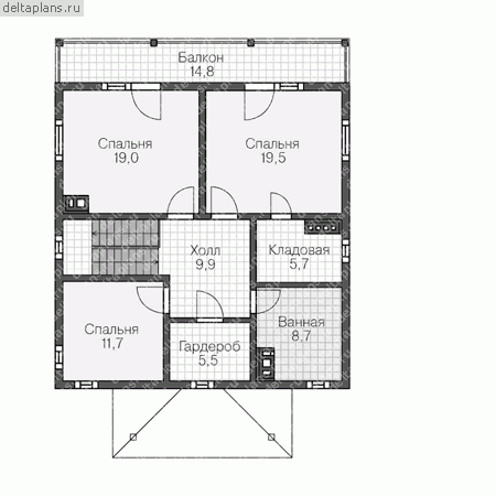
Проект U-208-1S
Застройщик: Юникс-Строй
207.87 м²
1 / 3
🏠
207.87 м²
📐
2 этаж
🧱
Каркас
Похожие проекты
Похожие по цене
Похожие по площади
Бордо 1
5 спальн. · 2 санузл. · 2 этаж
от 4 095 000 ₽
→
Бордо 1
5 спальн. · 2 санузл. · 2 этаж
от 4 095 000 ₽
→
Проект К-26 7 на 9, площадью 122 за 4 097 250 руб
3 спальн. · 2 этаж
от 4 097 250 ₽
→
Проект одноэтажного коттеджа "Дюар" из газобетона
3 спальн. · 1 этаж
от 16 170 000 ₽
→
Проект G-208-1K
2 этаж
от 17 039 600 ₽
→
Проект дома V-207-1P
2 этаж
от 14 546 000 ₽
→
На сайт застройщика