Перейти к контенту
Подбор и сравнение проектов домов от застройщиков Московской области
Подборщик домов
Калькулятор сметы
Калькулятор площади
Форум
Блог
Главная
›
Каталог проектов
›
Проект U-209-1P
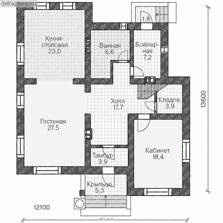
Проект U-209-1P
Застройщик: Юникс-Строй
208.65 м²
1 / 3
🏠
208.65 м²
📐
2 этаж
🧱
Пеноблок
Похожие проекты
Похожие по цене
Похожие по площади
Проект C-178-1K
3 этаж
от 14 605 840 ₽
→
Проект N-209-1P
3 этаж
от 14 602 000 ₽
→
Дом Ильинское из газобетона: заказать в Москве по низкой цене
3 спальн. · 3 санузл. · 2 этаж
от 14 600 000 ₽
→
Проект G-209-1K
3 этаж
от 17 110 940 ₽
→
Проект N-209-1P
3 этаж
от 14 602 000 ₽
→
Проект H-209-1D
2 этаж
от 31 320 000 ₽
→
На сайт застройщика