Перейти к контенту
Подбор и сравнение проектов домов от застройщиков Московской области
Подборщик домов
Калькулятор сметы
Калькулятор площади
Форум
Блог
Главная
›
Каталог проектов
›
Проект U-240-3P
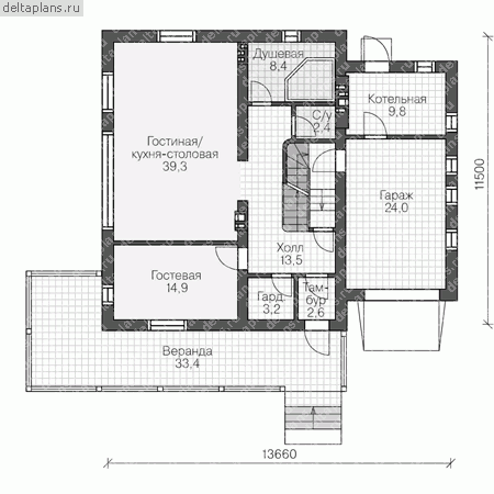
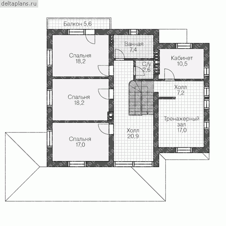
Проект U-240-3P
Застройщик: Юникс-Строй
236.82 м²
1 / 4
🏠
236.82 м²
📐
3 этаж
🧱
Пеноблок
Похожие проекты
Похожие по цене
Похожие по площади
Проект одноэтажного дома "Дельта" из бруса
4 спальн. · 2 этаж
от 16 577 789 ₽
→
Проект одноэтажного дома "Охотничья слободка" из бруса
4 спальн. · 1 этаж
от 16 577 789 ₽
→
Проект U-237-1P
3 этаж
от 16 566 900 ₽
→
Проект U-237-1P
3 этаж
от 16 566 900 ₽
→
Дом Озерецкое из газобетона: заказать в Москве по низкой цене
3 спальн. · 2 санузл. · 2 этаж
от 10 400 000 ₽
→
Дом Озерецкое из кирпича: заказать в Москве по низкой цене
3 спальн. · 2 санузл. · 2 этаж
от 10 400 000 ₽
→
На сайт застройщика