Перейти к контенту
Подбор и сравнение проектов домов от застройщиков Московской области
Подборщик домов
Калькулятор сметы
Калькулятор площади
Форум
Блог
Главная
›
Каталог проектов
›
Проект U-241-1K
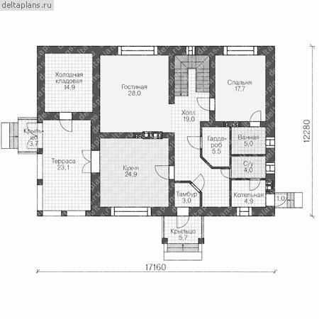
Проект U-241-1K
Застройщик: Юникс-Строй
241.77 м²
1 / 3
🏠
241.77 м²
📐
2 этаж
🧱
Кирпич
Похожие проекты
Похожие по цене
Похожие по площади
Современный дом с плоской крышей «Хейл»
4 спальн. · 3 санузл. · 2 этаж
от 19 824 000 ₽
→
Проект U-241-2K
2 санузл. · 2 этаж
от 19 821 040 ₽
→
Проект дома из керамоблоков 18х16 ТКБ-312: цена 11723000 руб.
5 спальн. · 3 санузл. · 2 этаж
от 19 821 000 ₽
→
Проект H-262-1P
2 этаж
от 16 920 400 ₽
→
Проект U-241-2K
2 санузл. · 2 этаж
от 19 821 040 ₽
→
Проект U-242-1P
2 этаж
от 16 920 400 ₽
→
На сайт застройщика