Перейти к контенту
Подбор и сравнение проектов домов от застройщиков Московской области
Подборщик домов
Калькулятор сметы
Калькулятор площади
Форум
Блог
Главная
›
Каталог проектов
›
Проект U-248-1K
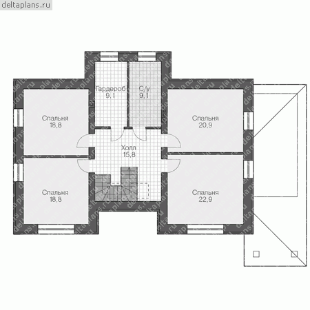
Проект U-248-1K
Застройщик: Юникс-Строй
248.35 м²
1 / 3
🏠
248.35 м²
📐
2 этаж
🧱
Кирпич
Похожие проекты
Похожие по цене
Похожие по площади
Проект U-292-1P
3 этаж
от 20 364 400 ₽
→
Проект T-287-1P
2 этаж
от 20 360 900 ₽
→
Дом по проекту «ЗС 19-17-2» - Золотое Сечение
3 спальн. · 2 санузл.
от 20 375 000 ₽
→
Проект T-166-3P
3 этаж
от 17 388 000 ₽
→
Современный дом с мансардой «Алнесс»
4 спальн. · 3 санузл. · 1 этаж
от 14 892 000 ₽
→
Проект одноэтажного дома "Каракум" из бруса
4 спальн. · 2 этаж
от 14 712 073 ₽
→
На сайт застройщика