Перейти к контенту
Подбор и сравнение проектов домов от застройщиков Московской области
Подборщик домов
Калькулятор сметы
Калькулятор площади
Форум
Блог
Главная
›
Каталог проектов
›
Проект U-255-1K
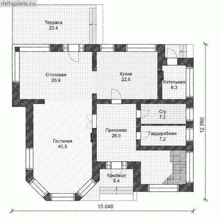
Проект U-255-1K
Застройщик: Юникс-Строй
255.48 м²
1 / 3
🏠
255.48 м²
📐
2 этаж
🧱
Кирпич
Похожие проекты
Похожие по цене
Похожие по площади
Проект «Greenville»
3 спальн. · 2 санузл. · 2 этаж
от 20 950 000 ₽
→
Проект «Greenville»
3 спальн. · 2 санузл. · 2 этаж
от 20 950 000 ₽
→
Проект «Manchester»
4 спальн. · 5 санузл.
от 20 950 000 ₽
→
Проект двухэтажного коттеджа "Инсайдер-2" из газобетона
2 этаж
от 11 357 000 ₽
→
Проект одноэтажного дома "Ежевика" из бруса
5 спальн. · 2 этаж
от 14 288 638 ₽
→
Проект одноэтажного дома "Ильинское" из бруса
2 спальн. · 2 этаж
от 18 307 587 ₽
→
На сайт застройщика