Перейти к контенту
Подбор и сравнение проектов домов от застройщиков Московской области
Подборщик домов
Калькулятор сметы
Калькулятор площади
Форум
Блог
Главная
›
Каталог проектов
›
Проект U-258-1P
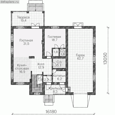
Проект U-258-1P
Застройщик: Юникс-Строй
258.83 м²
1 / 3
🏠
258.83 м²
📐
2 этаж
🧱
Пеноблок
Похожие проекты
Похожие по цене
Похожие по площади
Проект H-256-1P
3 этаж
от 18 122 300 ₽
→
Проект N-259-1P
2 этаж
от 18 109 000 ₽
→
Проект C-259-1P
2 этаж
от 18 102 700 ₽
→
Проект одноэтажного коттеджа "Янтарин" из газобетона
5 спальн. · 2 этаж
от 10 863 000 ₽
→
Проект L-259-1K
3 этаж
от 21 221 600 ₽
→
Проект H-256-1P
3 этаж
от 18 122 300 ₽
→
На сайт застройщика