Перейти к контенту
Подбор и сравнение проектов домов от застройщиков Московской области
Подборщик домов
Калькулятор сметы
Калькулятор площади
Форум
Блог
Главная
›
Каталог проектов
›
Проект U-266-1P
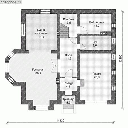
Проект U-266-1P
Застройщик: Юникс-Строй
266.0 м²
1 / 3
🏠
266.0 м²
📐
2 этаж
🧱
Пеноблок
Похожие проекты
Похожие по цене
Похожие по площади
Проект дома K-266-1P
2 этаж
от 18 606 000 ₽
→
Проект G-220-1K
3 этаж
от 18 605 800 ₽
→
Проект дома из керамоблоков 17х14 ТКБ-277: цена 11130000 руб.
5 спальн. · 4 санузл. · 2 этаж
от 18 641 000 ₽
→
Проект К-194 12 на 11, площадью 266 за 8 865 000 руб
4 спальн. · 2 этаж
от 8 865 000 ₽
→
Проект К-194 12 на 11, площадью 266 за 8 865 000 руб
4 спальн. · 2 этаж
от 7 448 000 ₽
→
Проект I-266-1K
2 этаж
от 21 807 080 ₽
→
На сайт застройщика