Перейти к контенту
Подбор и сравнение проектов домов от застройщиков Московской области
Подборщик домов
Калькулятор сметы
Калькулятор площади
Форум
Блог
Главная
›
Каталог проектов
›
Проект U-267-1P
Проект U-267-1P
Застройщик: Юникс-Строй
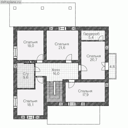
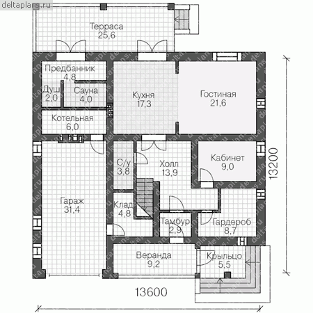
267.12 м²
1 / 3
🏠
267.12 м²
📐
2 этаж
🧱
Пеноблок
Похожие проекты
Похожие по цене
Похожие по площади
Проект A-228-1K
3 этаж
от 18 696 000 ₽
→
Проект одноэтажного каркасного дома "Лакоста"
5 спальн. · 2 этаж
от 18 703 575 ₽
→
Проект U-294-1P
3 этаж
от 18 688 600 ₽
→
Проект V-267-1K
2 этаж
от 21 906 300 ₽
→
Дом по проекту «ЗС 835-20» - Золотое Сечение
2 спальн. · 2 санузл.
от 33 375 000 ₽
→
Проект A-267-1K
2 этаж
от 21 894 000 ₽
→
На сайт застройщика