Перейти к контенту
Подбор и сравнение проектов домов от застройщиков Московской области
Подборщик домов
Калькулятор сметы
Калькулятор площади
Форум
Блог
Главная
›
Каталог проектов
›
Проект U-291-1K
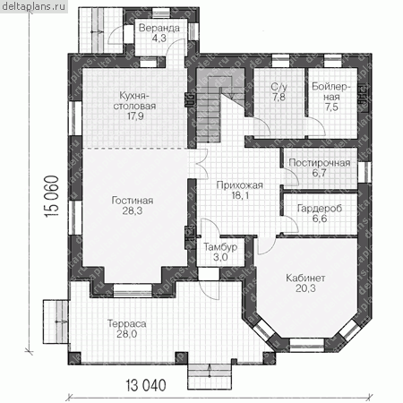
Проект U-291-1K
Застройщик: Юникс-Строй
259.94 м²
1 / 4
🏠
259.94 м²
📐
3 этаж
🧱
Кирпич
Похожие проекты
Похожие по цене
Похожие по площади
Проект дома «Эллиот»
3 спальн. · 1 этаж
от 21 315 000 ₽
→
Проект U-260-1K
2 этаж
от 21 316 720 ₽
→
Двухэтажный дом в стиле Хай-Тек «CHESTER» с барбекю на террасе
4 спальн. · 3 санузл. · 2 этаж
от 21 318 000 ₽
→
Проект U-260-1K
2 этаж
от 21 316 720 ₽
→
Проект A-364-1P
2 этаж
от 18 199 300 ₽
→
Проект двухэтажного коттеджа "Баварский" из газобетона
4 спальн. · 2 этаж
от 11 228 000 ₽
→
На сайт застройщика