Перейти к контенту
Подбор и сравнение проектов домов от застройщиков Московской области
Подборщик домов
Калькулятор сметы
Калькулятор площади
Форум
Блог
Главная
›
Каталог проектов
›
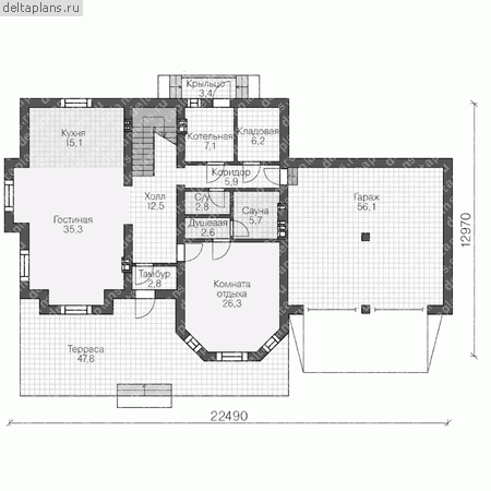
Проект U-300-1P
Проект U-300-1P
Застройщик: Юникс-Строй
299.0 м²
1 / 3
🏠
299.0 м²
📐
2 этаж
🧱
Пеноблок
Похожие проекты
Похожие по цене
Похожие по площади
Проект дома K-285-1P
3 этаж
от 20 930 000 ₽
→
Проект W-255-1K
3 этаж
от 20 934 600 ₽
→
Проект A-299-1P
2 этаж
от 20 923 000 ₽
→
Дом из кирпича Проект КД-8
3 спальн. · 2 санузл.
от 420 000 ₽
→
Дом по проекту «ЗС 18-17» - Золотое Сечение
5 спальн. · 3 санузл.
от 37 375 000 ₽
→
Проект дома K-285-1P
3 этаж
от 20 930 000 ₽
→
На сайт застройщика