Перейти к контенту
Подбор и сравнение проектов домов от застройщиков Московской области
Подборщик домов
Калькулятор сметы
Калькулятор площади
Форум
Блог
Главная
›
Каталог проектов
›
Проект U-300-2K
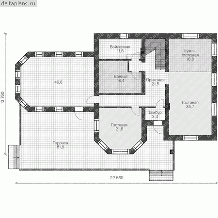
Проект U-300-2K
Застройщик: Юникс-Строй
303.85 м²
1 / 3
🏠
303.85 м²
📐
2 этаж
🧱
Кирпич
Похожие проекты
Похожие по цене
Похожие по площади
Проект D-166-1D
2 этаж
от 24 900 000 ₽
→
Проект J-166-1D
2 этаж
от 24 945 000 ₽
→
Проект U-304-1K
3 этаж
от 24 950 960 ₽
→
Современный дом с гаражом «BODEN»
4 спальн. · 3 санузл. · 2 этаж
от 18 228 000 ₽
→
Проект дома V-304-1P
3 этаж
от 21 262 500 ₽
→
Проект V-303-1P
2 этаж
от 21 256 900 ₽
→
На сайт застройщика