Перейти к контенту
Подбор и сравнение проектов домов от застройщиков Московской области
Подборщик домов
Калькулятор сметы
Калькулятор площади
Форум
Блог
Главная
›
Каталог проектов
›
Проект U-302-1P
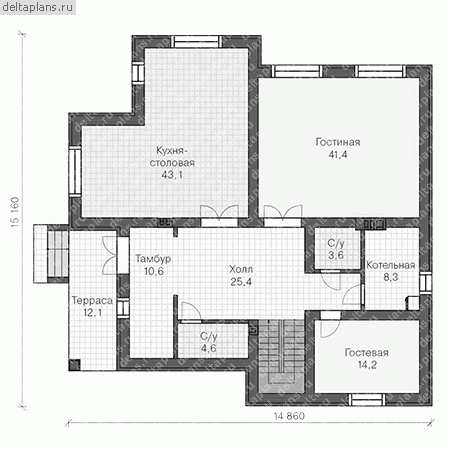
Проект U-302-1P
Застройщик: Юникс-Строй
302.2 м²
1 / 3
🏠
302.2 м²
📐
2 этаж
🧱
Пеноблок
Похожие проекты
Похожие по цене
Похожие по площади
Проект G-258-1K
3 этаж
от 21 156 000 ₽
→
Проект «Veneto»
от 21 150 000 ₽
→
Проект «Veneto»
от 21 150 000 ₽
→
Проект B-302-2K
3 этаж
от 24 780 400 ₽
→
Проект E-303-1K
2 этаж
от 24 788 600 ₽
→
Проект V-302-1P
2 этаж
от 21 145 600 ₽
→
На сайт застройщика