Перейти к контенту
Подбор и сравнение проектов домов от застройщиков Московской области
Подборщик домов
Калькулятор сметы
Калькулятор площади
Форум
Блог
Главная
›
Каталог проектов
›
Проект U-312-1K
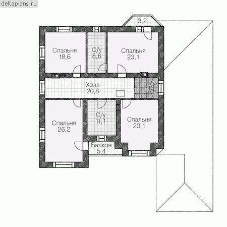
Проект U-312-1K
Застройщик: Юникс-Строй
312.0 м²
1 / 3
🏠
312.0 м²
📐
2 этаж
🧱
Кирпич
Похожие проекты
Похожие по цене
Похожие по площади
Проект M-312-1K
2 этаж
от 25 584 000 ₽
→
Проект W-312-1K
3 этаж
от 25 592 200 ₽
→
Проект U-366-1P
3 этаж
от 25 599 700 ₽
→
Проект дома из газоблоков 18х16 ГББ-312: цена 12147000 руб.
5 спальн. · 3 санузл. · 2 этаж
от 18 211 000 ₽
→
Проект дома из керамоблоков 18х16 ТКБ-312: цена 11723000 руб.
5 спальн. · 3 санузл. · 2 этаж
от 19 821 000 ₽
→
ПД - 312 - Строительство домов из Каркаса, СИП, Бруса под ключ
5 спальн. · 3 санузл. · 2 этаж
от 6 680 000 ₽
→
На сайт застройщика